Verfügbare Büroflächen im EAST114

Repräsentative Flächen, moderne Infrastruktur und professioneller Service schaffen optimale Bedingungen für produktives Arbeiten.

6. Obergeschoss

BODENBELAG

Parkettboden

FLÄCHENART

Büro (unmöbliert)

DECKENHÖHE

ca. 3,80m

Klimaanlage

Ja

BÜROFLÄCHE

260qm

VERFÜGBAR AB

Ab sofort

DACHTTERASSE

84qm

ACHSMASS

Variiert

3. Obergeschoss

BODENBELAG

Teppichboden

FLÄCHENART

Büro (unmöbliert)

DECKENHÖHE

ca. 3,80m

Klimaanlage

Ja

BÜROFLÄCHE

380qm

VERFÜGBAR AB

Ab Juni 2026

ACHSMASS

Variiert

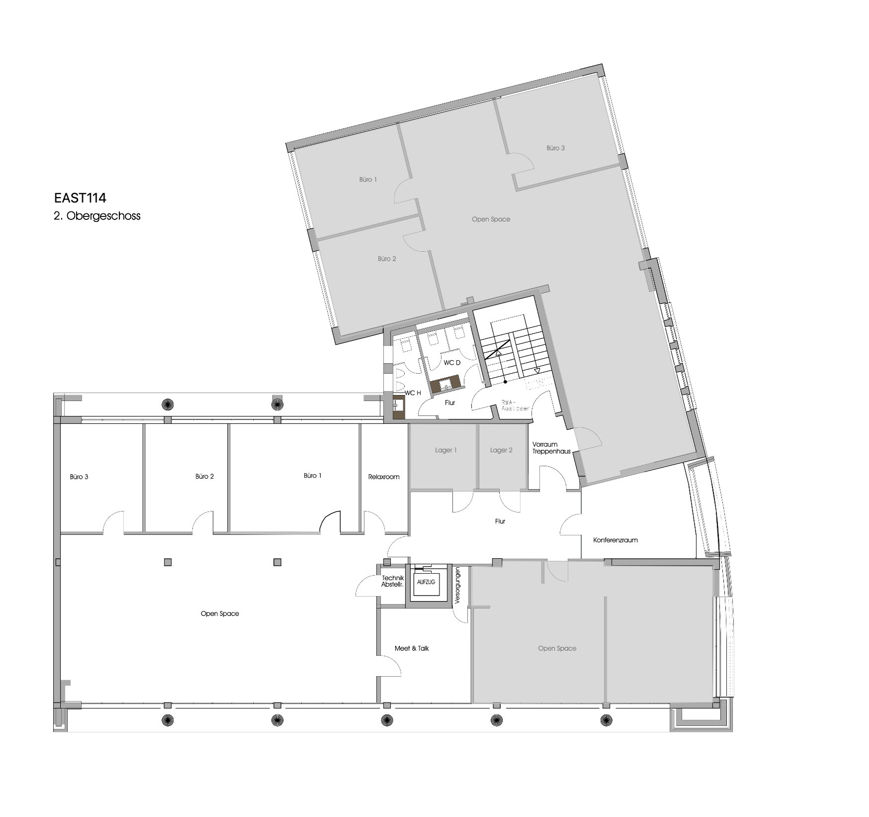
2. Obergeschoss

BODENBELAG

Teppichboden

FLÄCHENART

Büro (unmöbliert)

DECKENHÖHE

ca. 3,80m

Klimaanlage

Ja

BÜROFLÄCHE

240qm

VERFÜGBAR AB

Ab Juni 2026

ACHSMASS

Variiert